"Flo and Eric" house: modern and well insulated par Namas | homify
Namas

Namas

Namas
Namas
Le numéro est incorrect. Merci de vérifier le code du pays, préfixe et numéro de téléphone.
En cliquant sur 'Envoyer', je confirme que j'ai lu le Politique de confidentialité et j'accepte que mes informations précédentes soient traitées pour répondre à ma demande.
Note : Vous pouvez révoquer votre consentement en envoyant un e-mail à privacy@homify.com
Envoyé!
L'expert vous répondra au plus vite possible!

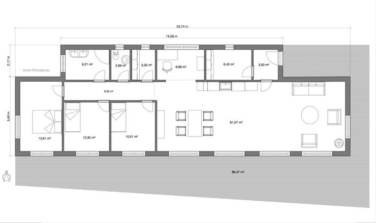
Flo & Eric Maison Bois

Dimensions totales
22 × 7 m / 132 m² (Longueur, Largeur / Surface)
Lieu
Mende, France

Admin-Area